FacebookPixel Flat T1, Matosinhos, Matosinhos e Leça da Palmeira / Sell / 220000 / Ref. l-05/9425
© 2026 Difrano – Soc. Investimentos Imobiliários, Lda.. AMI 9590.
All rights reserved.
Send property to a friend
Know more »
captcha
Required fields *

Flat T1 - Matosinhos, Matosinhos e Leça da Palmeira

220.000 €
Opportunity
Name
captcha
1
1
53 m²
54 m²
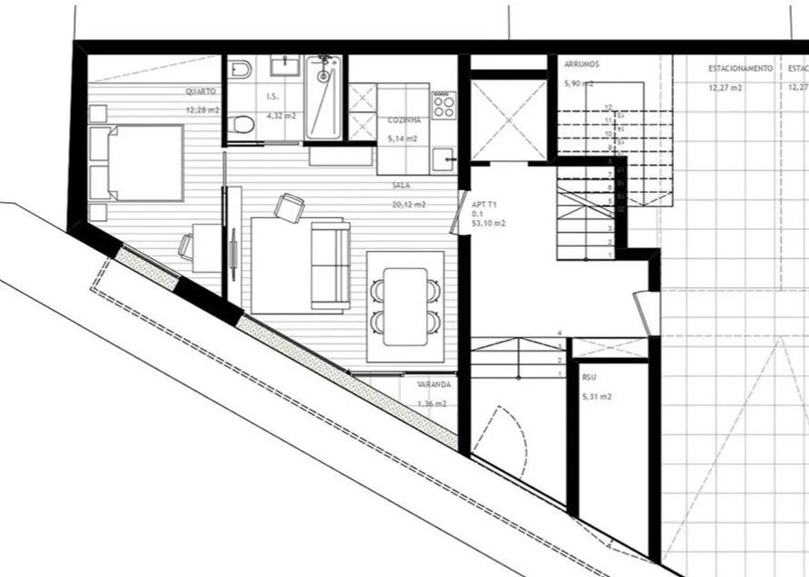
1-Bedroom Apartment in the Heart of Leça da Palmeira
Located on Rua General Humberto Delgado, right in the center of Leça da Palmeira (Matosinhos), this 1-bedroom apartment is a great opportunity for those looking to live in a prime area with easy access to all services, shops, public transport and the coastal area.
The apartment is part of a modern building offering excellent amenities, including a communal laundry room and a coworking space on the top floor — ideal for those seeking a flexible and well-equipped work environment.
The apartment stands out for its contemporary and functional design, with high-quality finishes:
  • Fully equipped kitchen with oven, hob, extractor fan and microwave;
  • Open-plan living room and kitchen with direct access to a 1.36m² balcony;
  • Bedroom with built-in wardrobes;
  • Security door for added safety;
  • Pre-installed air conditioning;
  • Recessed LED lighting in the ceiling;
  • White lacquered carpentry;
  • Ceramic flooring in wet areas, with matching wall finishes.
Perfect for those who value comfort, modernity and a central location by the sea.

FRONTAL stands out for its wide range of high-quality customer services and always approaches challenges with rigor and transparency.

Residential Segment – Supported by a large, dynamic, and ambitious team, this segment is committed to delivering excellent service, based on vast market experience and upholding the highest standards of ethics, discretion, and integrity. This contributes to both brand growth and customer satisfaction.
An independent department handles all administrative and financing processes, accompanying the client up to the deed.
Through its network of branches, know-how, dynamism, and commercial innovation—supported by marketing tools—Frontal responds effectively to the challenges posed by its clients and partners.

Business Segment – Focused on offering differentiated solutions to companies and corporate clients seeking products with a high degree of specificity. Includes storage.

Development Segment – Specializes in the marketing of real estate developments, offering a complete sales service supported by a marketing strategy and market study. It defines a clear positioning tailored to the dynamics of supply and demand, always aiming to exceed expectations.
Interested in this property?
Date
Name
Contact
Message
captcha
Property Type Flat
Typology 1 Room
Objective Sell
Condition Under Construction
Price 220.000 €
Year of Construction N/A
Country Portugal
District Porto
County Matosinhos
Parish Matosinhos e Leça da Palmeira
Zone N/A

Credit Simulator
IMT Simulator
Property value*
Loan Amount*
Your age*
Loan term *
Monthly Installment 0.00
The installment value presented does not include Life Insurance and Home Insurance.
Index 0.000%
TAEG 0.000%
Spread 0.000%
Term 0 anos
APR 0.000%
Simulate The information generated in this simulator is intended to provide information of an exclusively indicative nature to the user, not conferring any binding value or data collection for commercial purposes.
Property location*
Purpose*
Property value*
Complementary values*
IMT 0.00
Stamp Duty (0.8%) 0.00
Complementary values 0.00
Total to pay 0.00
Mais informações Simulate The information generated in this simulator is intended to provide information of an exclusively indicative nature to the user, not conferring any binding value or data collection for commercial purposes. Dados de Intermediação de Crédito - (Intermediário de Crédito nº )
General Features
General
  •  
Rooms
Rooms Area Floor Walls Ceilings Comments
 
Surroundings
  •  
Facilities
  •  
Domotic System (Home automation)
  •  
Renewable Energy
  •  
Property Location
See too
  • Flat T3
  • Flat T3
  • Flat T3
  • Flat T3
  • Flat T3
Opportunity
Flat T3
Flat T3
Matosinhos, Matosinhos e Leça da Palmeira
418.000 €
Flat T3
418.000 €
Flat T3 Matosinhos, Matosinhos e Leça da Palmeira
3
2
1
108 m²
Contactar
  • 3-Bedroom Duplex Apartment in Gated Community with Pool | Lavra, Matosinhos
  • 3-Bedroom Duplex Apartment in Gated Community with Pool | Lavra, Matosinhos
  • 3-Bedroom Duplex Apartment in Gated Community with Pool | Lavra, Matosinhos
  • 3-Bedroom Duplex Apartment in Gated Community with Pool | Lavra, Matosinhos
  • 3-Bedroom Duplex Apartment in Gated Community with Pool | Lavra, Matosinhos
Opportunity
3-Bedroom Duplex Apartment in Gated Community with Pool | Lavra, Matosinhos
Matosinhos, Perafita, Lavra e Santa Cruz do Bispo
495.000 €
3-Bedroom Duplex Apartment in Gated Community with Pool | Lavra, Matosinhos
495.000 €
3-Bedroom Duplex Apartment in Gated Community with Pool | Lavra, Matosinhos Matosinhos, Perafita, Lavra e Santa Cruz do Bispo
3
3
2
209 m²
57,1 m²
151,9 m²
Contactar
  • Flat T2
  • Flat T2
  • Flat T2
  • Flat T2
  • Flat T2
Opportunity
Flat T2
Flat T2
Matosinhos, Matosinhos e Leça da Palmeira
2.200 €
Flat T2
2.200 €
Flat T2 Matosinhos, Matosinhos e Leça da Palmeira
2
2
1
110 m²
Contactar
Date
Name
Contact
Message
captcha