FacebookPixel
Enviar imóvel a amigo
Saber mais »
captcha
Campos obrigatórios *

Hotel no Freixo

3.300.000 €
Seguir imóvel Receba um alerta quando existir uma Baixa de Preço
Nome
Insira o código da imagem
captcha
Código
3210 m²
5760 m²
6500 m²
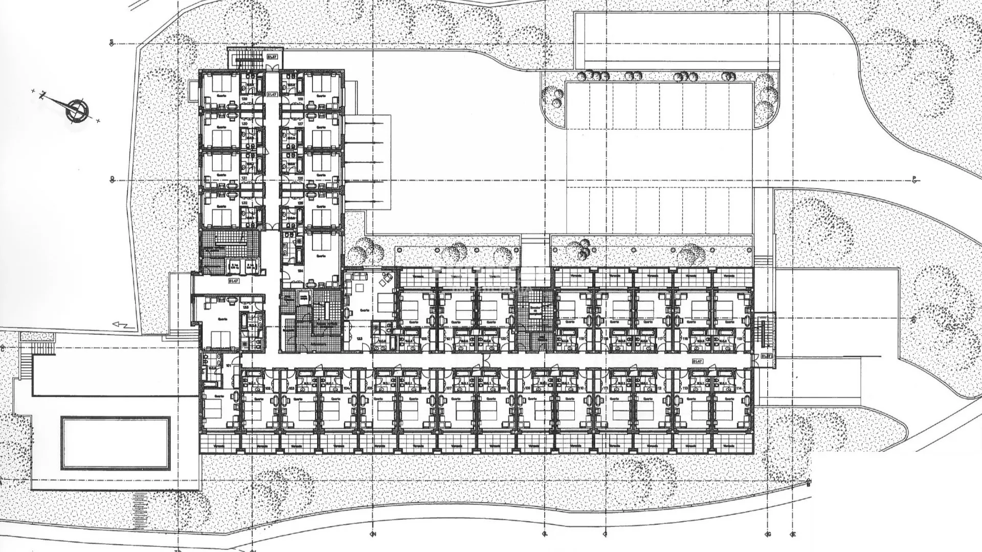
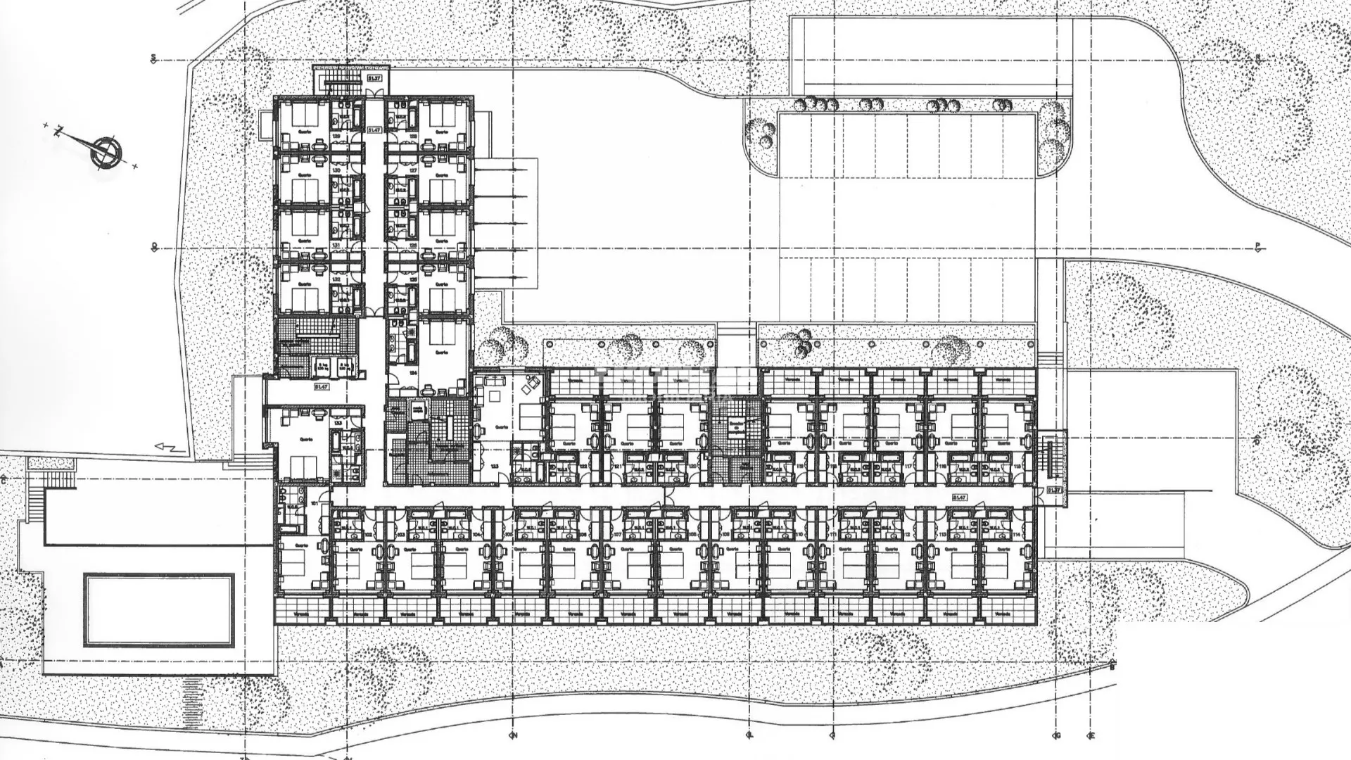
Terreno na zona do Freixo com projeto para construção de Hotel de 4 estrelas.

O terreno tem 6 500 m2 e está excelentemente localizado junto ao nó de acesso da VCI ao Freixo.

Localiza-se na margem do Rio Douro e é visível da Ponte do Freixo / A20 / IP1.

Tem vista panorâmica privilegiada sobre o Rio, as Pontes e as cidades do Porto e Vila Nova de Gaia.

O projeto inicial do Hotel equipa-o com 80 quartos, sendo hoje possível construir mais de 100 quartos, otimizando assim o investimento.

O acesso ao edifício far-se-á por um átrio descoberto, havendo lugar a uma piscina exterior.

Áreas:
• Terreno: 6 500 €;
• Implantação: 1 395 m2;
• Construção: 5 760 m2;

Pisos:
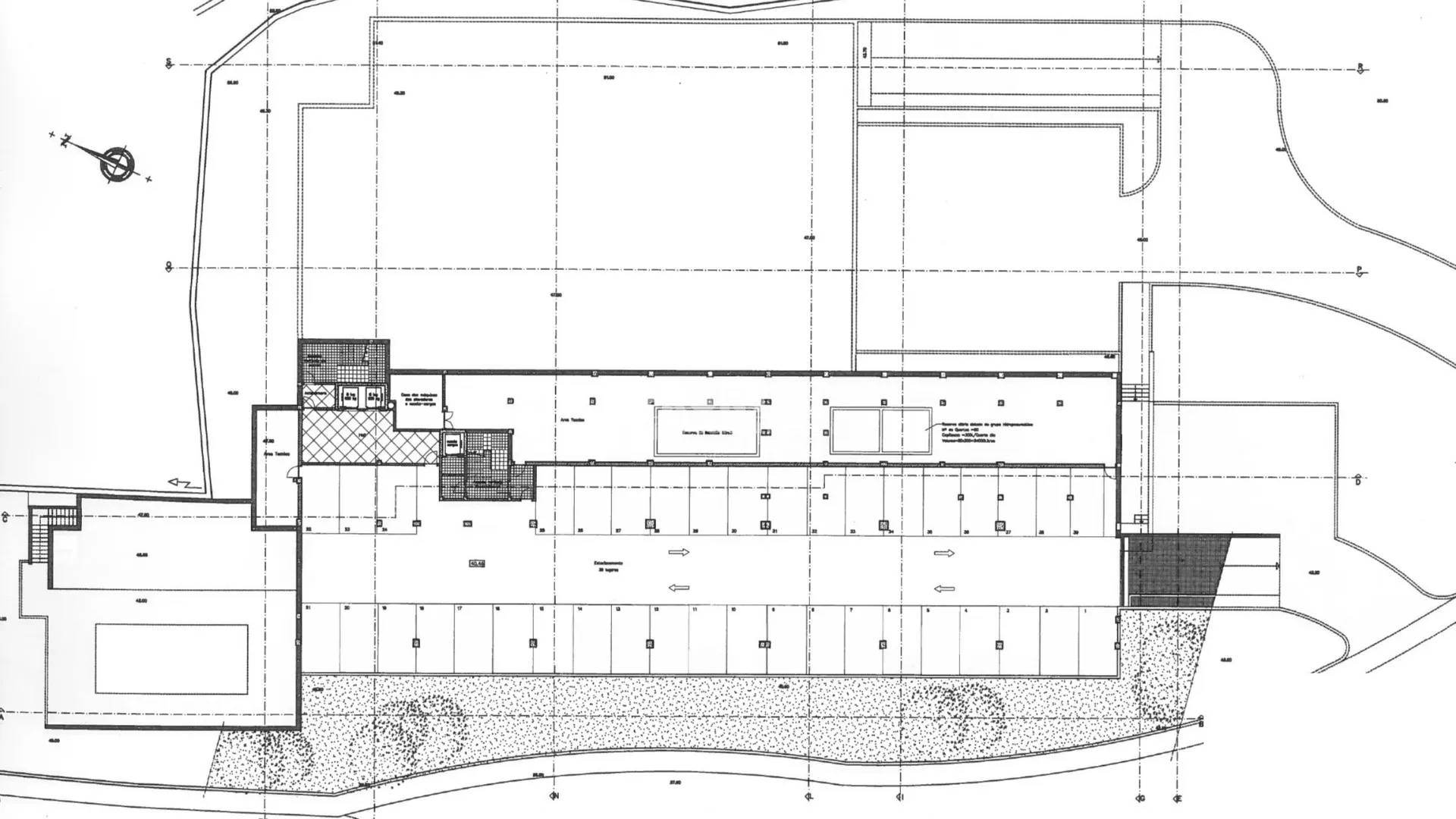
• 3 (hotelaria);
• 2 na cave (estacionamento);

Instalações Complementares:
• Bar e Piscina;
• Balneários;
• 75 lugares de estacionamento em garagem;
• 16 lugares de estacionamento exterior;
• Espaços Verdes;

Frontal, desde 1990.
Carácter e Competência.

--

A FRONTAL distingue-se pela amplitude no serviço de qualidade prestado ao cliente e encara sempre os desafios com rigor e frontalidade.

Segmento Residencial - conta com uma vasta equipa de comerciais, dinâmica e ambiciosa que tem por missão prestar um serviço de excelência, alicerçada numa vasta experiência do mercado, respeitando os mais elevados padrões de ética, descrição e integridade, contribuindo assim para o crescimento da marca e da satisfação dos seus clientes.

Apoiados por um departamento autónomo, trata de todos os processos administrativos e de financiamento acompanhando o cliente até á escritura.
Através da sua rede de Sucursais, Know-How, Dinâmica e Inovação Comercial, apoiada em ferramentas de Marketing, a Frontal responde eficazmente aos desafios que os seus clientes e parceiros possam lançar.

Segmento Empresarial - concentra-se na oferta de soluções diferenciadas a empresas e a clientes empresariais que procuram um produto dotado de um alto grau de especificidade.

Segmento Empreendimentos – tem o seu foco especializado na comercialização de Empreendimentos, contemplando um Serviço Global de Venda, apoiado numa Estratégia de Marketing e Estudo de Mercado, definindo um posicionamento claro e ajustado à dinâmica da oferta e da procura tendo como foco superar as suas expectativas.
Tipo de imóvel Terreno Para Construção
Tipologia 0 Quartos
Objetivo Venda
Estado N/D
Preço 3.300.000 €
Ano Construção N/D
País Portugal
Distrito Porto
Concelho Gondomar
Freguesia Gondomar (São Cosme), Valbom e Jovim
Zona N/D
FRONTAL Porto
FRONTAL Porto
Chamada para a rede fixa nacional
Pretendo ser contactado
Data
Hora
Nome
Contacto
Mensagem
captcha
Código

Simulador de Crédito
Simulador de IMT
Valor do imóvel*
Montante de Empréstimo*
A sua idade*
Prazo empréstimo *
Prestação Mensal 0.00
O valor da prestação apresentada não inclui Seguro de Vida e Seguro Lar.
Indexante 0.000%
TAEG 0.000%
Spread 0.000%
Prazo 0 anos
TAN 0.000%
Simular Inserir aqui o disclaimer. Isto é apenas uma simulação. Esta simulação de crédito não tem fins lucrativos.
Local do imóvel*
Finalidade*
Valor do imóvel*
Valores complementares*
IMT 0.00
Imposto de Selo (0,8%) 0.00
Valores complementares 0.00
Total a pagar 0.00
Mais informações Simular Inserir aqui o disclaimer. Isto é apenas uma simulação. Esta simulação de crédito não tem fins lucrativos. Dados de Intermediação de Crédito - (Intermediário de Crédito nº )
Características Gerais
Gerais
  •  
Divisões
Divisões Área Pavimento Paredes Tectos Observações
 
Meio Envolvente
  •  
Facilidades
  •  
Domótica
  •  
Energias Renováveis
  •  
Veja também
  • Terreno com Projeto Aprovado - 2.600 m² | São Pedro da Cova, Porto
  • Terreno com Projeto Aprovado - 2.600 m² | São Pedro da Cova, Porto
  • Terreno com Projeto Aprovado - 2.600 m² | São Pedro da Cova, Porto
  • Terreno com Projeto Aprovado - 2.600 m² | São Pedro da Cova, Porto
  • Terreno com Projeto Aprovado - 2.600 m² | São Pedro da Cova, Porto
Oportunidade
Terreno com Projeto Aprovado - 2.600 m² | São Pedro da Cova, Porto
Gondomar, Fânzeres e São Pedro da Cova
210.000 €
Terreno com Projeto Aprovado - 2.600 m² | São Pedro da Cova, Porto
210.000 €
2600 m² A. Terreno
Contactar
  • Terreno para Construção | Gondomar
  • Terreno para Construção | Gondomar
  • Terreno para Construção | Gondomar
  • Terreno para Construção | Gondomar
  • Terreno para Construção | Gondomar
Oportunidade
Terreno para Construção | Gondomar
Gondomar, Gondomar (São Cosme), Valbom e Jovim
270.000 €
Terreno para Construção | Gondomar
270.000 €
Terreno para Construção | Gondomar Gondomar, Gondomar (São Cosme), Valbom e Jovim
2600 m² A. Terreno
Contactar
  • Conjunto de Terrenos com Potencial Único de Construção | Valbom, Gondomar
  • Conjunto de Terrenos com Potencial Único de Construção | Valbom, Gondomar
  • Conjunto de Terrenos com Potencial Único de Construção | Valbom, Gondomar
  • Conjunto de Terrenos com Potencial Único de Construção | Valbom, Gondomar
  • Conjunto de Terrenos com Potencial Único de Construção | Valbom, Gondomar
Oportunidade
Conjunto de Terrenos com Potencial Único de Construção | Valbom, Gondomar
Gondomar, Gondomar (São Cosme), Valbom e Jovim
1.360.000 €
Conjunto de Terrenos com Potencial Único de Construção | Valbom, Gondomar
1.360.000 €
6933 m² A. Terreno
Contactar
Estamos disponíveis para o ajudar Pretendo ser contactado
Data
Hora
Nome
Contacto
Mensagem
captcha
Código
O que é a pesquisa responsável
Esta pesquisa permite obter resultados mais ajustados à sua disponibilidade financeira.